Výměry

Výměry

Obrázek

Zrychlete tvorbu rozpočtů a vytvářejte přehledné výkazy výměr.

Seznamte se s aplikací Výměry. Díky odměřování množství položek z výkresů máte vizuálně propojený výkaz výměr přímo s 2D nebo 3D projektovou dokumentací. Zpětné dohledání potřebného čísla, kóty nebo prvku modelu je díky tomu tak jednoduché, že se ve vašich výpočtech už nikdy neztratíte. 

Potřebujete neustále sčítat kóty pro zjištění celkového množství položky? Počítáte často pro jednu konstrukci jak plochu, tak i obvod? Díky chytrým funkcím určeným přímo pro rozpočtáře ušetříte spoustu času a energie. Aplikace za vás automaticky sčítá hodnoty se stejným popisem nebo doplňuje hodnotu obvodu k naměřené ploše.

Aplikace Výměry poskytuje nový pohled na výkazy výměr položek, které snadno spojíte s položkami v programu KROS 4.

Dostáváte kromě klasické 2D projektové dokumentace i BIM model? Využijte ho k vytěžení výměr a ještě rychlejší tvorbě rozpočtu. Klikněte zde pro více informací.


Začít je snadné

Aplikace Výměry umožňuje

PRÁCE S PROJEKTOVOU DOKUMENTACÍ

Obrázek

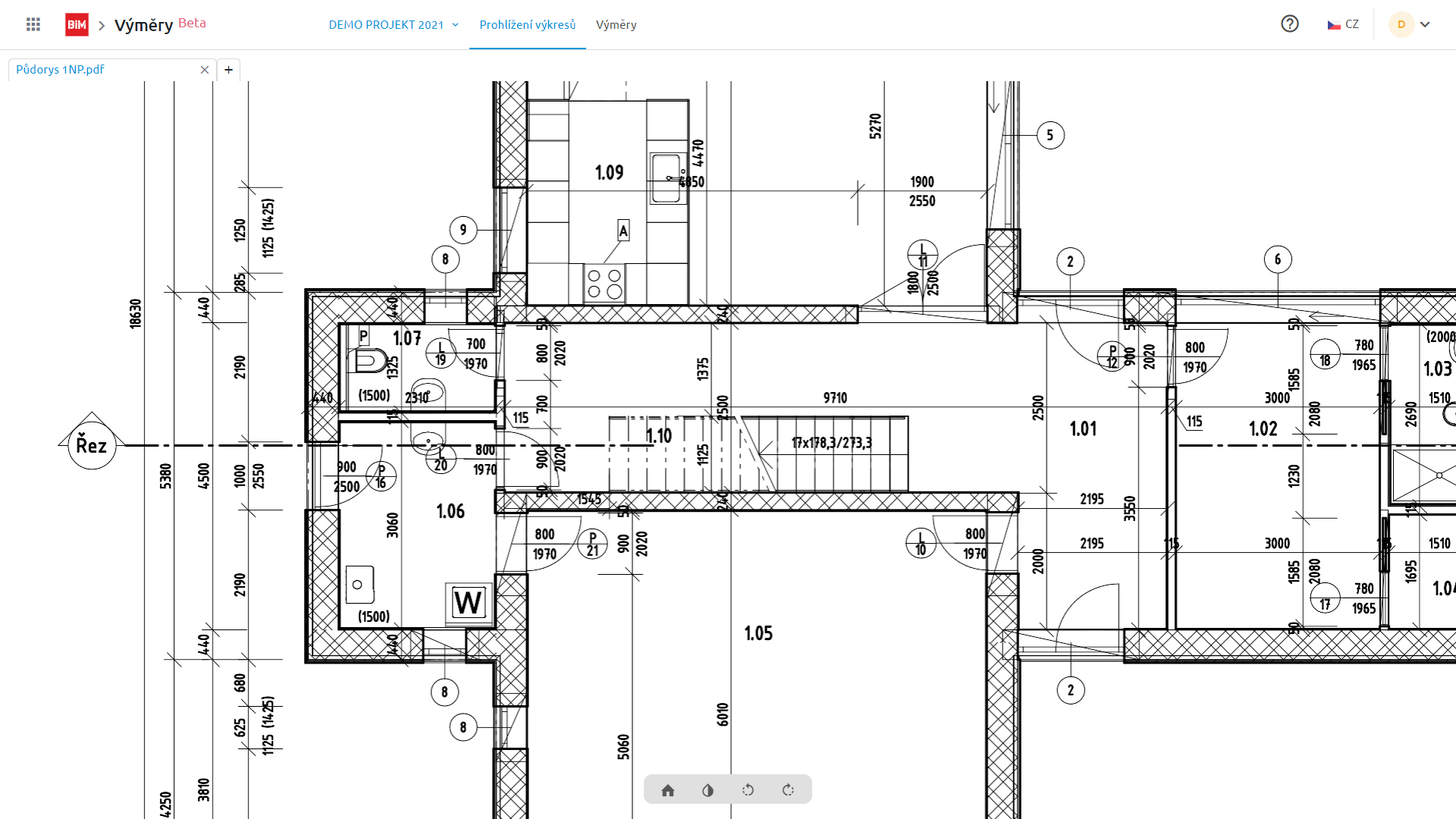
Odměřování hodnot z výkresu - při jednoduchém odměřování délek, ploch či úhlů je zjištění výměry otázkou okamžiku. Každé měření se zobrazí přímo ve výkresu a zároveň se uloží do tabulky měření, kde je k dispozici při tvorbě výkazu výměr. V aplikaci otevřete všechny výkresy ve všech formátech PDF a DWG.

Automatické doplnění výměr - nedělejte stejnou práci dvakrát. Odměřená množství jednoduše používejte i pro další položky. Pro usnadnění práce vám aplikace nabízí při měření ploch automaticky i obvod. Pokud zadáte další parametr (jako např. výšku místnosti), automaticky za vás sečte plochy stěn a přidá hodnoty objemu. 

Sdílená dokumentace na cloudu - mějte celou projektovou dokumentaci na jednom místě a přístupnou odkudkoliv, třeba i přímo ze stavby. Díky sdílení je pak komunikace s ostatními účastníky projektu transparentní. Tabulku s naměřenými hodnotami a celý projekt máte v jedné aplikaci. 

NOVÉ VÝKAZY VÝMĚR

Obrázek

Automatické sčítání měření - otravuje vás nekonečné zadávání hodnot do výkazu výměr? Díky možnosti zadání popisu k měření se vám budou automaticky sčítat jednotlivá měření. Nespornou výhodou je, že každé měření obsahuje automaticky údaj, z jakého výkresu bylo množství odečtené. Nemusíte tedy nadále tento údaj ručně vypisovat do výpočtu.


Automatický přepočet - každý člověk dělá chyby. V případě, že potřebujete upravit již vytvořené výkazy výměr, díky provázanosti se už nemusíte starat, v jakých položkách byly špatné výpočty použity. Aplikace je upraví za vás a vše máte bezpečně pod kontrolou.



Obrázek

Přehlednější a transparentní výkaz výměr - neztrácejte se ve složitých výpočtech. Ani tvůrce rozpočtu po měsíci nepozná, co které číslo znamená. S aplikací Výměry vytvoříte výkazy výměr, které dávají díky přehledným popisům a poznámkám smysl i po dlouhé době od vytvoření a v případě potřeby si lehce zobrazíte jednotlivé kroky výpočtu. 

Připravujeme pro Vás

Parametrizace a překlápění rozpočtu - přidávejte si parametry k vytvořeným výkazům, už nikdy tak pro vás nebude problém zjistit, jaké položky a množství se týkají konkrétních parametrů. Díky překlápění rozpočtu pak můžete jednoduše pracovat buď s TSKP tříděním, jak jste zvyklí, nebo se na rozpočet dívat jiným pohledem (po patrech, místnostech, etapách apod.)

Podmínky používání

Aplikace Výměry je dostupná pro uživatele s aktivní licencí programu KROS 4 od minimální konfigurace Lite s provázaným účtem BIM platformy. Spuštění aplikace je možné přímo z webu www.bimplatforma.cz nebo přes funkci Výkaz výměr v programu KROS 4. Aplikaci je také možné koupit samostatně na Klientském portálu ÚRS.

Náhledy aplikace